Exkluzivně Vám nabízíme k prodeji byt 1+1, v osobním vlastnictví, o výměře 39m², nacházející se v 8. patře zatepleného panelového domu s energetickou náročností D, v klidné části Hrádku nad Nisou ul. Pod Tratí, avšak s výbornou dopravní dostupností a občanskou vybaveností v pěší dostupnosti.
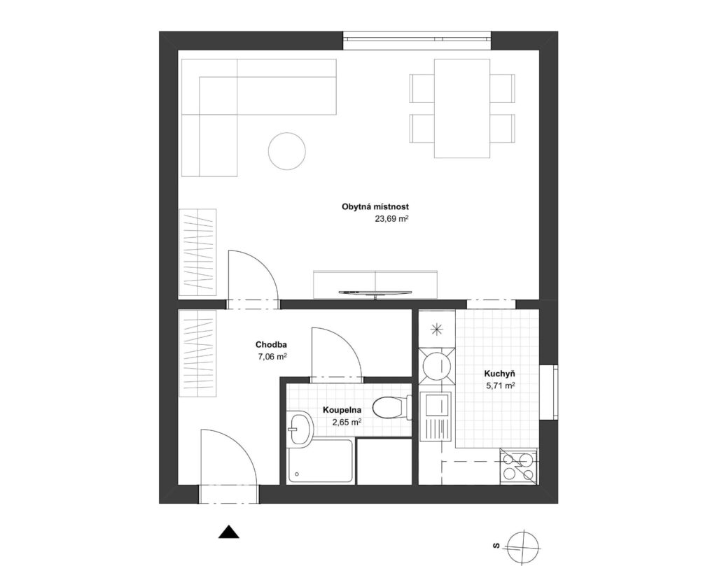
Byt je v původním, ale velmi zachovalém stavu, který umožňuje přestavbu dle vlastních představ nebo po drobném zvelebení okamžité nastěhování. Byt se skládá z předsíně, koupelny, obytného pokoje a samostatné kuchyně. Kuchyň je vybavena kuchyňskou linkou, sporákem a jídelním stolkem. Koupelna je zděná a disponuje sprchovým koutem, umyvadlem a wc. V předsíni najdeme vestavěnou skříň. Pokoj je nezařízený, průchozí do kuchyně, avšak je možné zpřístupnit vchod z předsíně. Okna plastová se žaluziemi, podlahy kryjí PVC, vytápění a zdroj teplé vody dálkové. K bytu náleží sklepní kóje, společná kolárna, sušárna, kočárkárna. Parkování na přilehlých sídlištních parkovištích.
Panelový dům, v němž se byt nachází prošel rekonstrukcí (zateplení fasády, výměna oken, výtahy, dlažby, stoupačky). Výhledově cca do 2 let je plánovaná výstavba plynové kotelny, čímž se do budoucna sníží náklady na vytápění a ohřev vody. Okolí domu obklopuje zeleň a jsou zde přilehlá dětská hřiště. Veškerá občanská vybavenost je v pěší dostupnosti, obchod 200m, autobusová a vlaková zastávka cca 7min chůze. Jedná se o dům s velmi dobře fungujícím SVJ, které má vytvořené finanční rezervy a není zatíženo žádným úvěrem.
Kupní cena 2.499.000,-Kč včetně provize a právního servisu.
Provozní náklady bytu ( FO, správa domu apod.) včetně záloh na služby činní 3.228,-Kč + elektřina odhadem 1.000,-Kč.
Byt je vhodný pro vlastní bydlení, ale také jako investiční příležitost.
Při současných cenách nájmů návratnost cca 18 let.
Více informací Vám rádi sdělíme na uvedených kontaktech, doporučujeme však osobní prohlídku.
- ID Zakázky: LB2047MK
- Typ Transakce: Prodej
- Město: Hrádek nad Nisou
- Typ Nemovitosti: Byt
- Budova: Panelová
- Podlaží: 8
- Dispozice: 1+1 / 2+kk
- Velikost: 39 m²
- Cena: 2.499.000,- Kč
- Provize RK Započítána: Ano
- Poznámka: nízké provozní náklady
- Stav: Velmi dobrý
- Vlastnictví: OV
- Umístění: klidná část obce
- Výtah: Ano
- Sklep: Ano
- Zdroj vody: dálkový
- Topení: dálkové vytápění
- Odpadní voda: kanalizace
- Parkování: na přilehlém parkovišti
- Doprava: vlak, dálkový autobus, silnice, dálnice
- Příjezdová cesta: asfalt




































