Exkluzivně vám nabízíme k pronájmu atypicky řešený byt o velikosti 140m², v podkroví cihlového domu na rozhraní Starých Pavlovic a Stráže nad Nisou s výbornou dostupností do Liberce. Jedná se o pronájem celého prvního patra dvougeneračního domu se samostatným vstupem, terasou a zahradou. Bydlení, které si zamilujete.
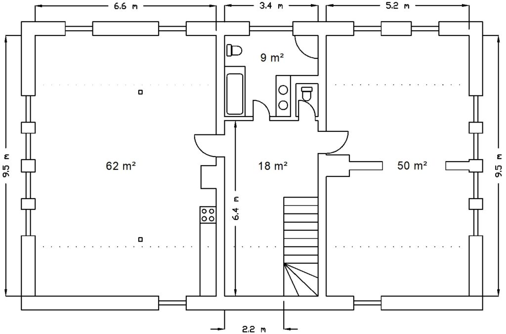
Za vstupními dveřmi se nachází předsíň, ze které se jde po schodišti do podkroví. Nahoře u schodiště je otevřený prostor 18m², který lze využít jako pracovna apod. Naproti schodišti najdeme samostatné wc a koupelnu, která disponuje vanou, sprchovým koutem, dvěma umyvadly, zrcadlem, vrchem plněnou pračkou a druhým wc. Nalevo od schodiště vstupujeme do obývacího pokoje o velikosti 62m², který disponuje kuchyňským koutem. Kuchyňský kout je vybaven kuchyňskou linkou, sporákem a digestoří. Naproti přes chodbu pak vejdeme do pokoje o velikosti 50m², který lze nestavebně rozdělit na dvě ložnice.
Místnosti jsou velmi prostorné a světlé. Podlahy kryjí koberce, u kuchyňského koutu PVC, v koupelně dlažba, okna plastová. Vytápění zajišťuje společný plynový kotel v domě.
K dispozici prostorná půda, terasa a zahrada. Na hranici zahrady protéká potok. Pro parkování je vyhrazeno místo na pozemku cca pro 6 aut. Autobusová zastávka 5 minut chůze. Pouze zájemci bez domácích mazlíčků volně pobíhajících po bytě (pes, kočka).
cena za pronájem 18.000,-Kč + 3.000,-Kč plyn, 1.000,-Kč elektřina, 500,-Kč/osoba voda. Vratná kauce 25.000,-Kč.
Více informací Vám rádi sdělíme na uvedených kontaktech.
- ID Zakázky: LB1997MK
- Typ Transakce: Pronájem
- Město: Liberec
- Lokalita: Staré Pavlovice
- Typ Nemovitosti: Byt
- Budova: Cihlová
- Podlaží: 1
- Dispozice: 3+1 / větší
- Velikost: 140 m²
- Cena: 18.000,- Kč
- Poplatky: bez služeb a energií
- Poznámka: +3.000,-Kč plyn, 1.000,-Kč elektřina, 500,-Kč/osoba voda
- Kauce: 25.000,- Kč
- Stav: Velmi dobrý
- Vlastnictví: OV
- Umístění: okraj města
- Terasa: Ano
- Zahrada: Ano
- Půda: Ano
- Topení: kotel - plyn
- Internet: zaveden ( není v ceně )
- Parkování: vyhrazené parkovací místo, ve dvoře
- Doprava: MHD, vlak, silnice
- Příjezdová cesta: asfalt












































